Adjust the alignment plate width of the stacker that aligns sheets in the paper feed direction in staple finisher.
Objects of Adjustment: Offset for All Size, A4 long edge feed, B5 long edge feed, A5 long edge feed, 8.5 11 long edge feed, 16K long edge feed, 9 11 long edge feed, Custom(139~230 mm)
If a numeric value is specified for Offset for All Size, it is applied to all paper sizes. With a specific paper size selected,the set value becomes the sum of the entered value and the value previously specified for Offset for All Size.
Press Adjustment on the MACHINE screen to display the Adjustment Menu screen.
Press Finisher Adjustment, Staple Finisher Adjustment, Staple Finisher(Main) Adj., and FD Alignment Plate Adj. in sequence.
Select the size to be adjusted.
Press Print Mode.
Load the paper size selected in step 3, then select that tray.
Press Start on the control panel.
A sample pattern will be output.
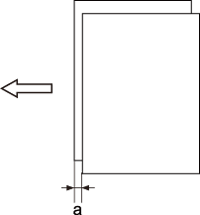
Check the misalignment (a) in paper feed direction of printed paper.
Allowance for misalignment (a): 1.0 mm or less when binding 2 to 15 sheets, 1.5 mm or less when binding 16 to 100 sheets
supplementary explanationCheck sheets for any paper skew. Skew occurs if insertion is too deep.
Press Exit PrintMode to return to the FD Alignment Plate Adj. screen.
If any adjustment is required, use the touch panel keypad to enter the set value.
Adj. Range: -50~+50 1 step = 0.1 mm
[-] Wide [+] Narrow
supplementary explanationUse +/- to specify the value to be positive or negative.
Press Set to change the setting with the Current Data.
Repeat steps 4 to 10 until the desired result is obtained.
Press Return.
The screen returns to the Staple Finisher(Main) Adjustment Menu screen.